物件写真

おすすめポイント
〜 国道29号線近くの賃貸物件!
駐車場も広々3台分!!〜
物件情報
| 登録目的 | 賃貸 家賃:40,000円/月 礼金:1月分 |
|---|---|
| 築年数 | 1979年(築46年) |
| 敷地面積 | 662.54平方メートル |
| 延床面積 | 196.25平方メートル |
| 所在地 | 八頭町花 |
|---|---|
| 構造 | 木造2階建 |
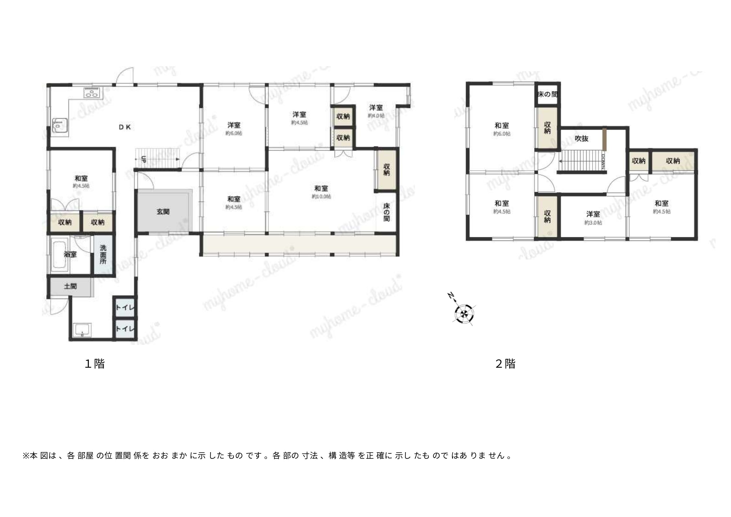
| 間取り | 10DK |
| 利用状況 | 空き家(令和7年11月〜) |
| 補修の要否 | 不要 |
| 補修の費用負担 | 入居者負担 |
| 残置物 | 無し |
設備状況
| 電力 | 引き込み済 |
|---|---|
| ガス | プロパンガス |
| 水道・下水道 | 上水道・下水道 |
| 風呂 | 灯油 |
| トイレ | 水洗 |
| 駐車場 | 3台 |
|---|---|
| 庭 | 有り |
| 農地 | 無し |
| ペット | 可 |
| その他 | 無し |
周辺状況
| 役場 | 4.2km (八頭町役場庁舎) |
|---|---|
| スーパー | 4.5km (サンマート) |
| コンビニ | 2.0km (ローソン西御門店) |
| 郵便局 | 2.1km (八頭郵便局) |
| 保育所 | 2.3km (八東保育所) |
|---|---|
| 小学校 | 4.2km (郡家西小学校) |
| 中学校 | 4.1km (八頭中学校) |
| 鉄道駅 | 2.0km (隼駅) |
備考
- 特になし
お問い合わせ
お問い合わせは、下記のフォームより受け付けています。
対面相談やオンライン相談は、予約制です。
担当者が不在の場合がありますので、来所される際は、必ず事前にご連絡ください。

一般社団法人 Yearning for Yazu Project
ヤーニング フォー ヤズ プロジェクト
〒680-0526
鳥取県八頭郡八頭町日下部1228番地1
Tel:080-3878-3658
Email:yearning.for.yazu@gmail.com
▶︎対面相談・オンライン相談は予約制です◀︎
▶︎来所される際は必ず事前にご連絡下さい◀︎
ーアクセスマップー
© 2023 Yearning for Yazu Project



















