物件写真

おすすめポイント
〜 元カフェと元焼き肉屋の店舗兼住宅!
国道沿いの物件です!!〜
物件情報
| 登録目的 | 売却 価格:600万円 (応相談) |
|---|---|
| 築年数 | 1973年(築52年) |
| 敷地面積 | 731.09平方メートル |
| 延床面積 | 535.23平方メートル |
| 所在地 | 八頭町徳丸 |
|---|---|
| 構造 | 木造2階建 |
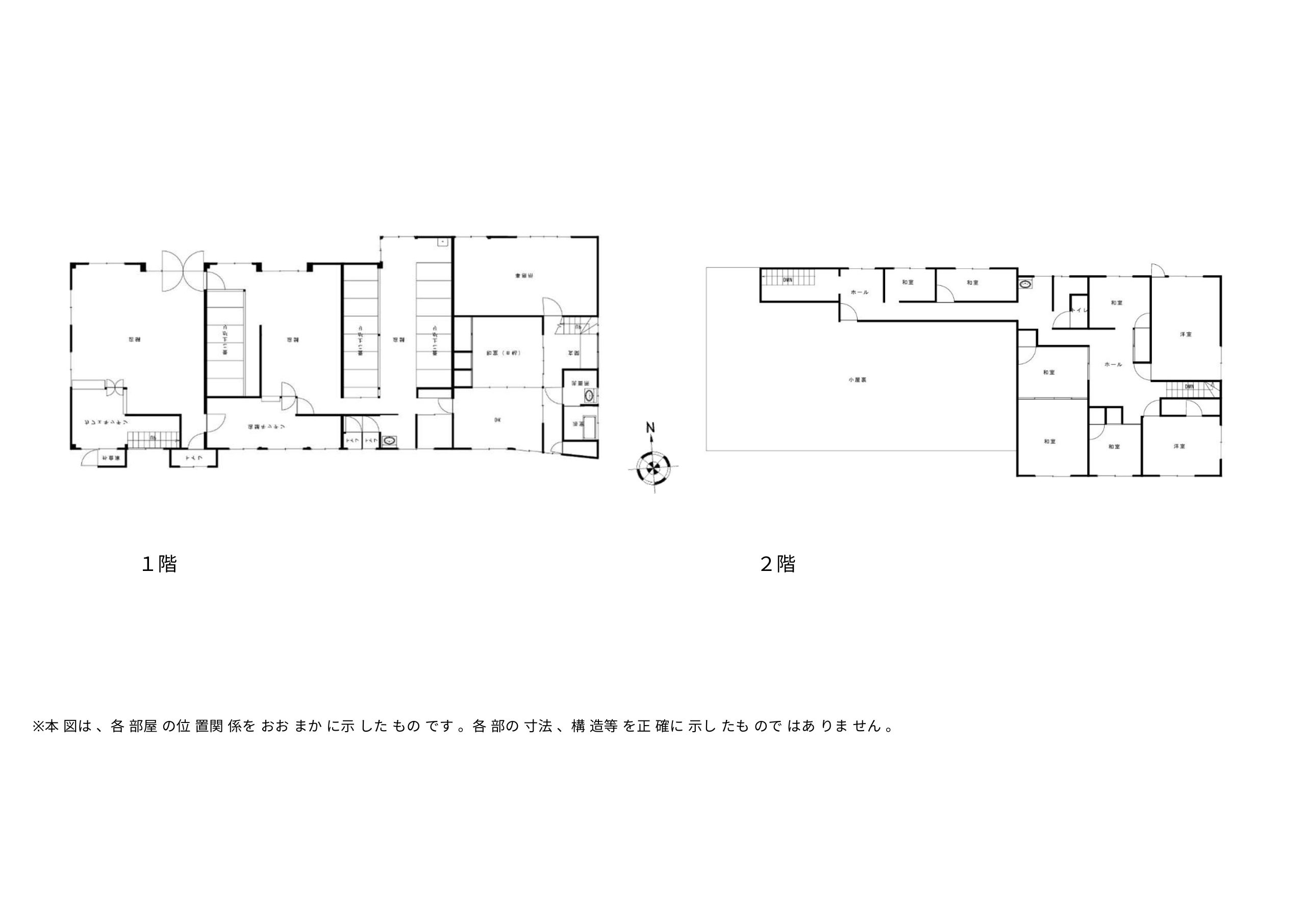
| 間取り | 10DK+店舗 |
| 利用状況 | 空き家(令和6年11月〜) |
| 補修の要否 | 大幅な修繕が必要 |
| 補修の費用負担 | 入居者負担 |
| 残置物 | 大幅な撤去が必要 |
設備状況
| 電力 | 引き込み済 |
|---|---|
| ガス | プロパンガス |
| 水道・下水道 | 上水道・下水道 |
| 風呂 | ガス |
| トイレ | 水洗 |
| 駐車場 | 4台以上 |
|---|---|
| 庭 | 有り |
| 農地 | 畑 |
| ペット | 可 |
| その他 | 倉庫 |
周辺状況
| 役場 | 1.0km (八頭町役場八東庁舎) |
|---|---|
| スーパー | 6.4km (エスマート) |
| コンビニ | 0.8km (ローソン北山店) |
| 郵便局 | 0.9km (丹比郵便局) |
| 保育所 | 4.5km (八東保育所) |
|---|---|
| 小学校 | 1.2km (八東小学校) |
| 中学校 | 10.9km (八頭中学校) |
| 鉄道駅 | 1.0km (徳丸駅) |
備考
- 値引きの相談に応じます
- 土砂災害警戒区域(土石流)
お問い合わせ
お問い合わせは、下記のフォームより受け付けています。
対面相談やオンライン相談は、予約制です。
担当者が不在の場合がありますので、来所される際は、必ず事前にご連絡ください。

一般社団法人 Yearning for Yazu Project
ヤーニング フォー ヤズ プロジェクト
〒680-0526
鳥取県八頭郡八頭町日下部1228番地1
Email:yearning.for.yazu@gmail.com
▶︎対面相談・オンライン相談は予約制です◀︎
▶︎来所される際は必ず事前にご連絡下さい◀︎
ーアクセスマップー
© 2023 Yearning for Yazu Project


















