物件写真

おすすめポイント
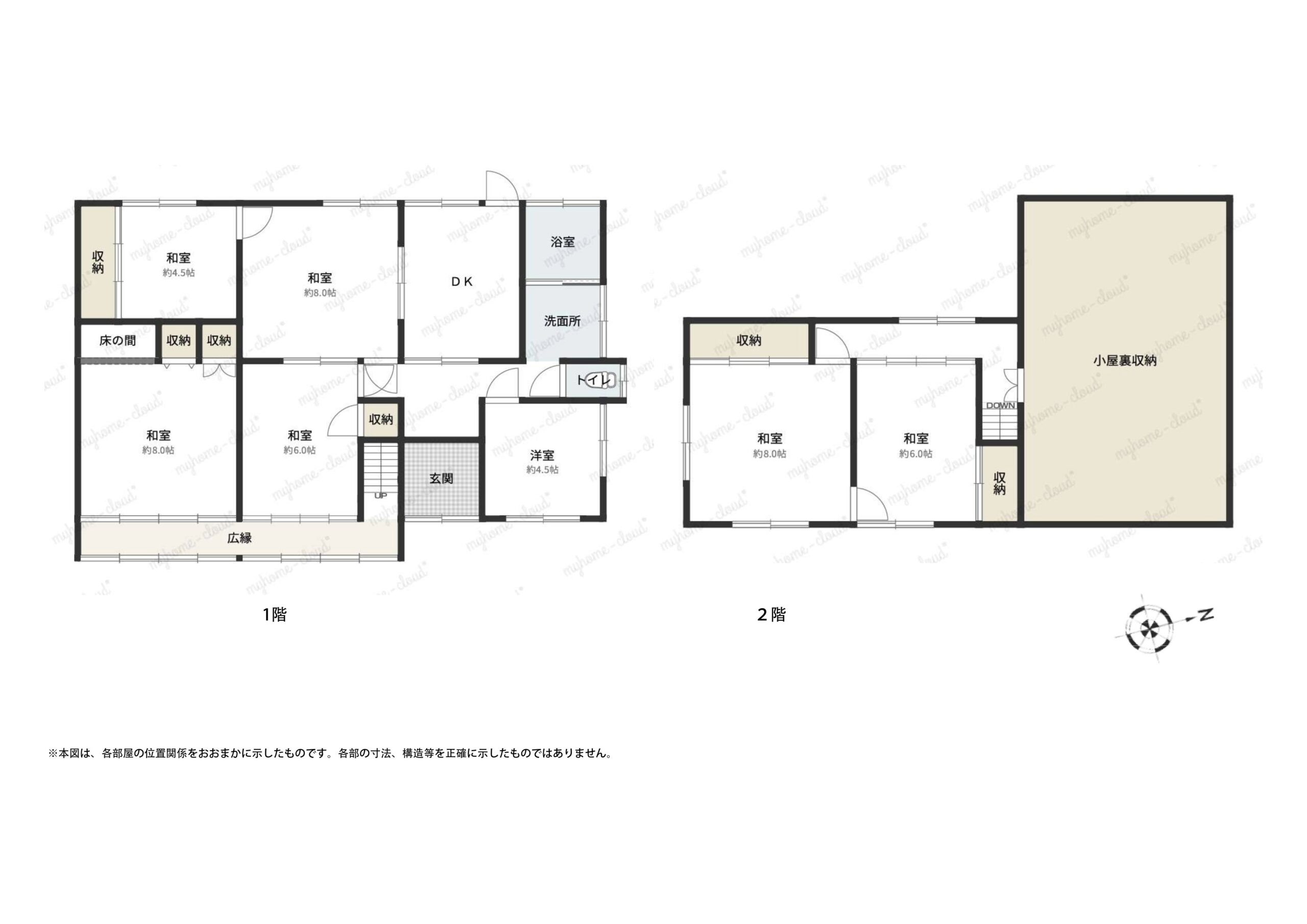
〜 静かな中山間地のコンパクトな7DK物件!
広々とした小屋裏収納付!〜
物件情報
登録目的 | 売却 (価格:100万円) |
---|---|
築年数 | 1977年(築48年) |
敷地面積 | 316.48平方メートル |
延床面積 | 145.99平方メートル |
所在地 | 八頭町篠波 |
---|---|
構造 | 木造2階建 |
間取り | 7DK |
利用状況 | 空き家(H27年〜) |
補修の要否 | 多少の修繕が必要 |
補修の費用負担 | 入居者負担 |
残置物 | 大幅な撤去が必要(処分は所有者) |
設備状況
電力 | 引き込み済 |
---|---|
ガス | プロパンガス |
水道・下水道 | 上水道・下水道 |
風呂 | 給湯機器無し |
トイレ | 水洗 |
駐車場 | 2台 |
---|---|
庭 | 有り |
農地 | 田 |
ペット | 可 |
その他 | 外物置 |
周辺状況
役場 | 6.2km (八頭町役場本庁舎) |
---|---|
スーパー | 4.2km (ハピーマート) |
コンビニ | 4.3km (Family Mart下坂店) |
郵便局 | 1.7km (下私都郵便局) |
保育所 | 3.5km (郡家東保育所) |
---|---|
小学校 | 3.7km (郡家東小学校) |
中学校 | 5.8km (八頭中学校) |
鉄道駅 | 4.0km (東郡家駅) |
備考
- 現状有姿渡し
- 建物未登記
- 売却額は応相談
- 農地の売買には農業委員会の許可が必要です
お問い合わせ
お問い合わせは、下記のフォームより受け付けています。
対面相談やオンライン相談は、予約制です。
担当者が不在の場合がありますので、来所される際は、必ず事前にご連絡ください。

一般社団法人 Yearning for Yazu Project
ヤーニング フォー ヤズ プロジェクト
〒680-0526
鳥取県八頭郡八頭町日下部1228番地1
Email:yearning.for.yazu@gmail.com
▶︎対面相談・オンライン相談は予約制です◀︎
▶︎来所される際は必ず事前にご連絡下さい◀︎
ーアクセスマップー
© 2023 Yearning for Yazu Project