物件写真

おすすめポイント
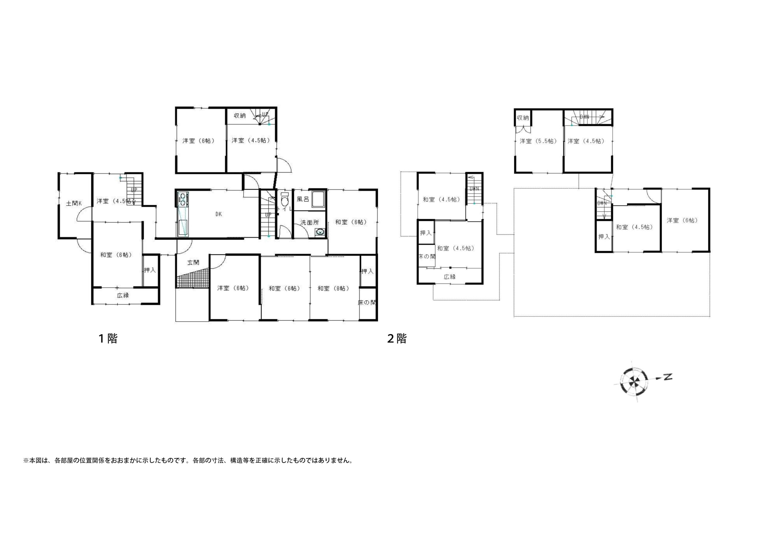
〜 食品加工が出来る土間キッチン付きで、
敷地内で家庭菜園も可能な広々14部屋物件、
エネファーム付きで災害時も安心〜
物件情報
| 登録目的 | 売却 (価格:200万円) |
|---|---|
| 築年数 | 1973年(築52年) |
| 敷地面積 | 547.17平方メートル |
| 延床面積 | 107.06平方メートル |
| 所在地 | 八頭町堀越 |
|---|---|
| 構造 | 木造2階建 |
| 間取り | 14DKK |
| 利用状況 | 毎日管理 |
| 補修の要否 | 多少の修繕が必要 |
| 補修の費用負担 | 入居者負担 |
| 残置物 | 大幅な撤去が必要(処分は所有者) |
設備状況
| 電力 | 引き込み済 |
|---|---|
| ガス | プロパンガス |
| 水道・下水道 | 上水道・下水道 |
| 風呂 | ガス |
| トイレ | 水洗 |
| 駐車場 | 2台 |
|---|---|
| 庭 | 有り |
| 農地 | 畑 |
| ペット | 可 |
| その他 | 倉庫 |
周辺状況
| 役場 | 3.9km (八頭町役場本庁舎) |
|---|---|
| スーパー | 1.1km (ハピーマート) |
| コンビニ | 1.0km (Family Mart下坂) |
| 郵便局 | 0.4km (堀越簡易郵便局) |
| 保育所 | 1.0km (郡家東保育所) |
|---|---|
| 小学校 | 1.3km (郡家東小学校) |
| 中学校 | 2.8km (八頭中学校) |
| 鉄道駅 | 0.4km (東郡家駅) |
備考
- 山林を含めて売買希望
- 家財等、必要であれば使用可能(不要な場合は所有者で処分)
- 建物相続登記未了
- 建物登記と現況に相違有
- 農地の売買には農業委員会の許可が必要です
- 売却額は応相談
お問い合わせ
お問い合わせは、下記のフォームより受け付けています。
対面相談やオンライン相談は、予約制です。
担当者が不在の場合がありますので、来所される際は、必ず事前にご連絡ください。

一般社団法人 Yearning for Yazu Project
ヤーニング フォー ヤズ プロジェクト
〒680-0526
鳥取県八頭郡八頭町日下部1228番地1
Email:yearning.for.yazu@gmail.com
▶︎対面相談・オンライン相談は予約制です◀︎
▶︎来所される際は必ず事前にご連絡下さい◀︎
ーアクセスマップー
© 2023 Yearning for Yazu Project













